ID CP2609151

Schei, zona SRI, apartament doua camere 55mp, priveliste superba, 119000 euro

ID CP2609151

119,000 €

Apartament cu 2 camere de vânzare
Schei, Brasov
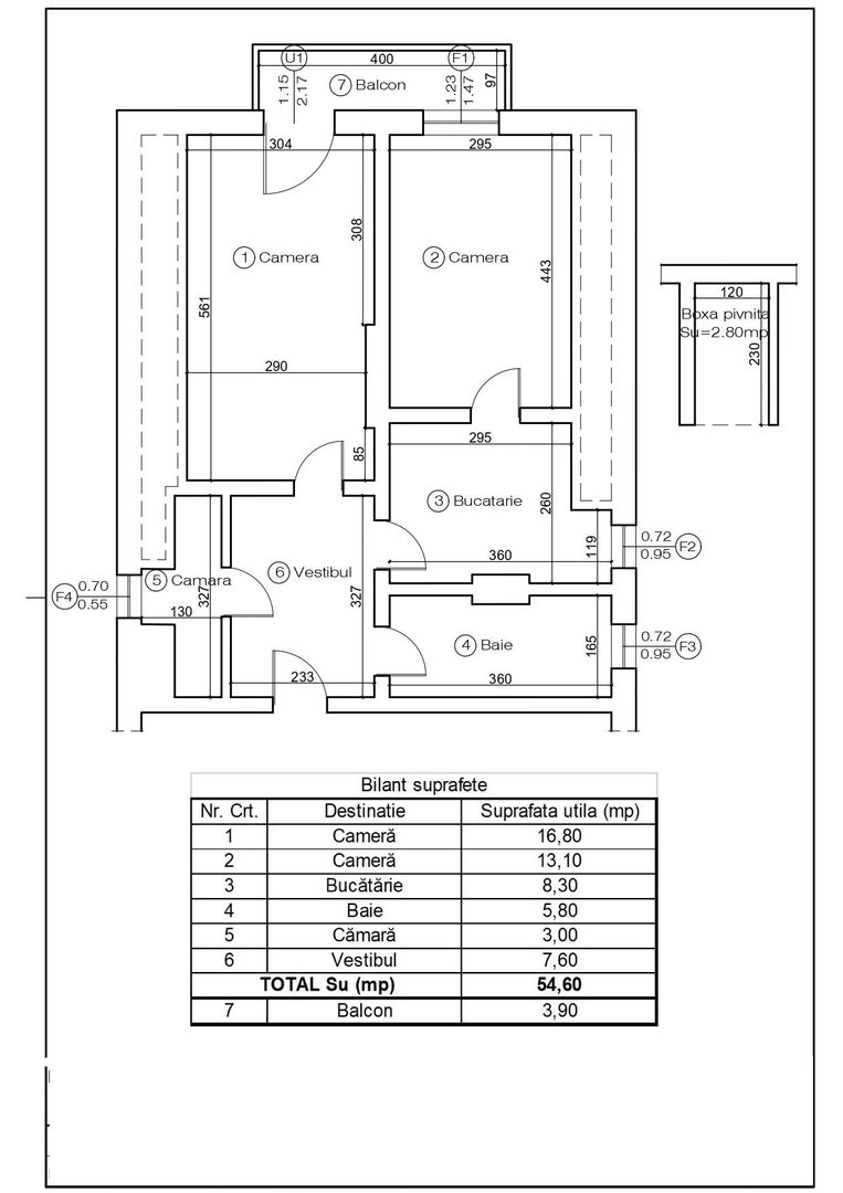
55 mp
1957

Agentia Imobiliara Euro Dome propune spre vanzare in Exclusivitate un apartament cu doua camere situat intr-o zona foarte frumoasa, la poalele Muntelui Tampa, in cartierul Schei, in apropierea Pietii Unirii. Acesta se situeaza intrun bloc tip vila, cu regim de inaltime P+2E+M, fiind dispus la mansarda. Este decomandat, are suprafata utila de 55mp+4mp balconul. Ambele camere au expunere vestica iar privelistea de pe balcon este una de exceptie, putand fi admirate Drumul Poienii, Dealul Cetatii sau Biserica Sf Nicolae. Totodata in aproiere se afla Liceul Pedagogic, Liceul A Saguna, Liceul Honterus si baza sportiva Olimpia. Apartamentul necesita renovare dar pentru cineva inspirat poate reprezenta o provocare, ce va aduce cu sigurata satisfacii pe masura. La subsol detine o boxa pentru depozitare. Este liber la vanzare, detinem cheile proprietatii pentru o mai buna si usoara vizionare. Pret vanzare- 119000 euro neg. Comision cumparator- 2%.

Citește mai mult

  • Tip apartament
    Apartament
  • Compartimentare
    Decomandat
  • Număr camere
    2
  • Dormitoare
    1
  • Număr bucătării
    1
  • Număr băi
    1
  • Geam la baie
    Da
  • Etaj
    3
  • Suprafață utilă
    55 mp
  • Suprafață construită
    65 mp
  • Disponibilitate
    Imediat
  • Orientare
    Vest
  • Confort
    1
  • Stare interior
    Necesită renovare
  • Număr balcoane
    1
  • Imobil
    Bloc de apart.
  • An construcție
    1957
  • Tip construcție
    Cărămidă
  • Număr etaje clădire
    3
  • Are pod
    Da

Facilități

Apă
Boxă la subsol
Canalizare
CATV
Contor electric
Contor gaz
Curent
Gaz
Geamuri termopan
Iluminat stradal
Internet
Mijloace de transport în comun
Sobă / Teracotă
Străzi asfaltate
Telefon
Vedere panoramică
Vedere spre munte
Ovidiu Harsan - Euro Dome Imobiliare
Ovidiu Harsan
Agent

0721952533


Solicită chiar acum o vizionare
Telefon
Sună acum Solicită vizionare
Necesare:

Site-ul nu poate funcționa corect fără aceste cookie-uri. Vezi cookie-urile

Statistică:

Strângem statistici anonime despre voi, vizitatorii unici, pentru a vă îmbunătăți experiența dumneavoastră. Vezi cookie-urile

Marketing:

Pentru a ne promova mai eficient serviciile noastre, folosim cookies pentru a vă identifica și a vă oferi proprietăți și servicii personalizate. Vezi cookie-urile

Acest site folosește cookies, află detalii. Alege ce tipuri de cookies dorești să permitem: